KVĚT zahradní architektura

návrhy zahrad, zahradní a krajinářské architektura

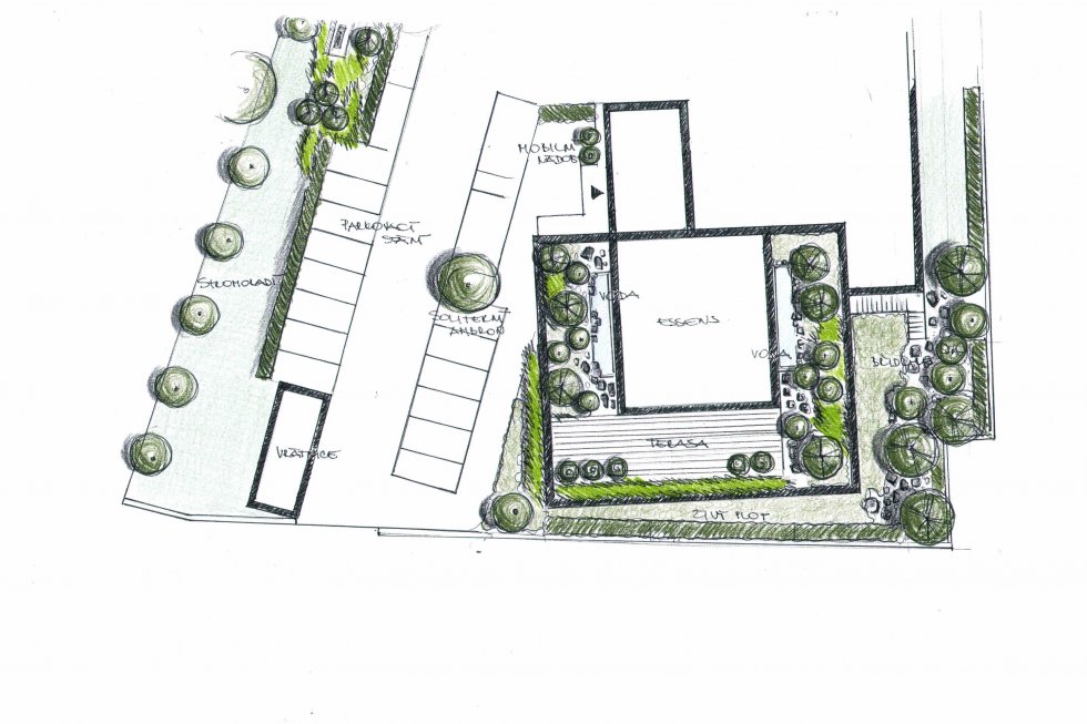
Realizujeme zahradní jezírka a vodní prvky, pergoly, kamenné zídky, cesty a další. Provádíme vegetační úpravy. Specializujeme se na projekci a realizaci zahradní a krajinářské architektury.

Pěstujeme a zakládáme kobercové trávníky ve vlastní školce a stavíme travnatá sportovní hřiště.

Pokud Vás zaujaly naše služby profesionální kvality prosím, neváhejte nás kontaktovat.

Nabízíme:

REFERENCE

Zanechte hodnocení
Firma působí v regionech...